Aluminium Extrusion

aluminum-extrusion-supplier-vancouver.png


Stickwall markets two systems for site-built construction, Stickwall 1500 and Stickwall 2500.


Stickwall 1500

Available with back section dimensions of 100mm, 125mm, and 150mm

  • Pressure plate and cap available

  • SSG available

  • Anodized finish in: Clear, Bronze, and Black available

  • Powder coat paint (AAA2603 or AAMA 2604) available in broad colour range

  • PVDF (AAMA2605) available in broad colour range

  • Fully thermally broken with polyamide spacers

 

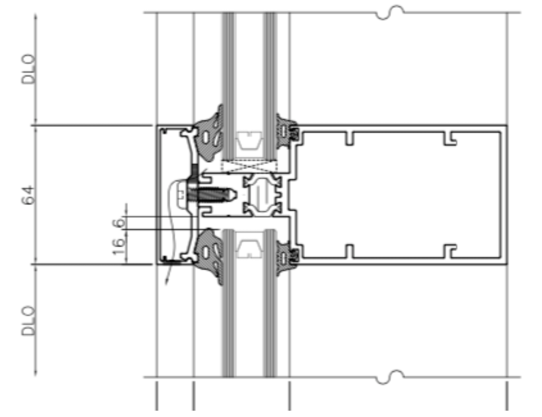
SW 1500 – VERTICAL SECTION

SW 1500 – HORIZONTAL SECTION

SW 1500 – HORIZONTAL SECTION

SW 1500 – SSG VERTICAL SECTION

SW 1500 – SSG VERTICAL SECTION

Stickwall 2500

Stickwall 2500 is designed with a proprietary pressure plate design that does not require attachment with fasteners. Pressure plates and caps are held in place by the wedge gasket. This saves the cost of the fasteners and the labour required to install them. Re-glazing is simplified because there is no need to interfere with the adjoining unit gaskets. Finally heat transfer is reduced because there is no conduction through pressure plate screws. 

  • Available with back section dimensions of 100mm, 125mm, and 150mm

  • Pressure plate and cap available

  • SSG available

  • Anodized finish in: Clear, Bronze, and Black available

  • Powder coat paint (AAA2603 or AAMA 2604) available in broad colour range

  • PVDF (AAMA2605) available in broad colour range

  • Fully thermally broken with polyamide spacers

SW 2500 – VERTICAL SECTION

SW 2500 – VERTICAL SECTION

SW 2500 – HORIZONTAL SECTION

SW 2500 – HORIZONTAL SECTION

SW 2500 – FLOOR ATTACHMENT SECTION

SW 2500 – FLOOR ATTACHMENT SECTION

System Performance:

Air Infiltration: 0.10 m3/hr/m2 at 300 Pa

Water Penetration: Zero at 700 Pa

Structural Deflection: Less than L/175 at 1330 Pa

Thermal U-Value: 1.94 W/K/m2

 

Do you have a question? Feel free to contact us and we will get back to you shortly!

Get In Touch